Viflytterhjem
03.10.22

Like før sommerferien feiret vi innflytting til vårt nye kontor midt i Torggata 🥂🎉 Etter å ha bodd hos Spaces siden Progit sin oppstart ble ønsket om eget kontor større og større i takt med at vi ble flere. Men så kom korona i 2020 og alle planer ble lagt på is. Det ble spekulert i om kontorets tid var “ferdig” og at hjemmekontor var kommet for å bli, uavhengig av pandemien. Men ett år inn i pandemien fant vi ut at vi ikke trengte mindre kontor, men mer! Litt mot markedet generelt valgte vi derfor å investere i et nytt lokale for å kunne tilby våre ansatte en plass å arbeide og utveksle kunnskap. Viktigheten av dette valget ble understreket av utfordringene mange av våre kunder opplevde på denne tiden med en cocktail blandet av forskjellige fargenivåer basert på smittesituasjonen, faste kontordager, eller ingen kontordager. Hvor mange kjenner seg ikke igjen i èn fast kontordag i uka hos kunde og resten hjemmekontor? Eller å ha dratt til kundens kontor utenfor den faste dagen for kun å sitte i teamsmøter med resten av teamet som er på hjemmekontor? Som et ungt konsulentselskap ble det plutselig veldig viktig å kunne tilby et alternativt arbeidssted hvor man kan møte andre mennesker, spesielt siden vi alltid har verdsatt det sosiale høyt.

Nytt kontor nye muligheter
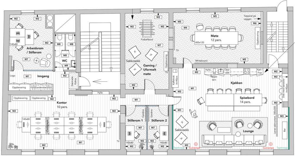
Flott, ikke sant? Som en gammel kodebase trengte det kun et par rammeverkoppgraderinger og litt refaktorering for å vise seg fra sin beste side. Vi søkte derfor hjelp hos en interiørarkitekt. Et av målene med å få seg et eget kontor var nettopp at selve kontoret skal representere kjernen av Progit sine verdier; nemlig å tilby et godt miljø hvor alle kan utvikle seg. For å oppnå dette hadde vi følgende krav for kontoret:
- Kontoret må ha muligheter for sosiale aktiviterer utenom arbeidstid
- Egne arbeidssoner for fokusert arbeid
- Arbeidsplassene skal ha et standardisert oppsett slik at man kun trenger å ta med seg laptop, mus og tastatur
- Små og store rom for standups, møter, workshops etc. Behovet for å ta korte digitale møter har aldri vært større
- Design skal matche Progit sin profil og ikke være et generisk kontor for hvem som helst
- Sosial sone skal enkelt kunne ommøbleres for å ha interne fagdager

Hele selskapet var med i diskusjonene om hvilke behov vi vil møte i fremtiden og hvordan kontoret skal utformes. Etter mange møter og mye frem og tilbake ble plantegningene endelig vedtatt. Like etterpå kom det inn et ufravikelig krav fra siden om å gjøre gamingrommet fleksibelt nok til å gjøre plass til et sammeleggbart bordtennisbord. Bordet har enda til gode å bli lagt sammen.

Hvordan brukes kontoret?
Vi flyttet inn like før sommeren og etter at vi omsider har begynt å komme ordentlig på plass kan vi trygt si at kontoret har gitt oss en ny dimensjon. Ikke bare har bordtennisbordet etablert seg som det mest populære spillet i gamingrommet, men enda viktigere har vi fått et eget hjem hvor vi kan arbeide sammen på tvers av kundeprosjekter. I tillegg har det Progit-utviklede produktet TaskCtrl flyttet sine ressurser inn hos oss.

Litt småarbeider gjenstår fortsatt innendørs før kontoret er ferdig implementert og bugfritt. Men på den korte tiden vi har bodd her har kontoret vært en stor sukess. Samtlige ansatte har lagt seg til rutiner hvor dagens arbeidssted veksler mellom hjemmekontor, kunde og hos Progit. Dette har gitt grobunn for å raskt få på plass en rekke nye initiativ:
- Det kjøpes inn felleslunsj hver dag for de som arbeider fra kontoret
- Faggruppen arrangerer regelmessige tekniske lunsj-talks
- Kaffebaren og kjøleskapene fylles jevnlig med et godt drikkeutvalg
- En gang i måneden setter vi av en kveld til Pils, Progg & Ping-Pong (som så langt har gitt oss et fantastisk live-system for å følge interne bordtenniskamper)
- Nye muligheter til våre interne fagdager
- Studenter som har sommerjobb hos Progit har kunnet jobbe herfra
- Kontoret brukes også på kveldstid til private fritidsaktiviteter; f.eks har vi en gjeng som møtes for å se Liverpool tape fotballkamper 😜
Vi er spent på veien videre og mulighetene dette gir oss som selskap. Også er selvfølgelig alle velkomne til å stikke innom oss i Torggata 9A for å ta en kaffe. Sees på kontoret 👋


Endre Skogen